这篇文章给大家聊聊关于楼梯扶手需要多高,以及楼梯扶手规范高度多少对应的知识点,希望对各位有所帮助,不要忘了收藏本站哦。
楼梯扶手国家规范要求
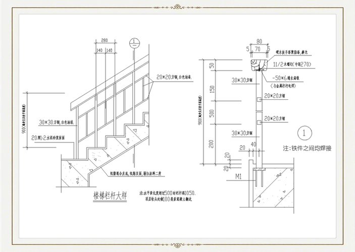
〖One〗、扶手的高度不应小于0.90米。当楼梯水平段的栏杆长度大于0.50米时,其扶手的高度不应小于05米。楼梯栏杆的垂直杆件间净距不应大于0.11米。若楼梯井的净宽大于0.11米,则必须采取防止儿童攀爬的措施。C. 学校、幼儿园等公共建筑的栏杆扶手要求更为详细。
〖Two〗、扶手的厚度应不小于5mm。 不锈钢管的壁厚选取不应小于2mm。(对应编号:60 47 32 160 47 28 160 47 32 260 47 28 22)对于有冲败的大面管,使用的是壁厚为63mm的不锈钢管(面管)和51mm(站腿)、38mm(横撑)、22mm(立柱)的不锈钢管。
〖Three〗、室内共用楼梯扶手的高度自踏步前沿量起至扶手上皮不宜低于0.9米,水平扶手超过0.5米长时,其高度不宜低于1米。 室外共用楼梯栏杆的高度不宜低于05米,中高层住宅不应低于10米。 楼梯井宽度大于0.2米时,不宜选用使儿童易于攀登的花格栏杆。垂直杆件之间净空不应大于0.11米。

楼梯扶手尺寸标准
〖One〗、室内楼梯扶手应至少离地面0.90米,室外楼梯则不宜低于05米。 若楼梯井宽度超过0.20米,栏杆的垂直杆件净空应小于0.11米,以防儿童跌落。 针对不同临空高度,楼梯扶手标准有所不同:24米以下楼梯,扶手高度不小于05米;24米及以上的楼梯,扶手高度不应低于10米。
〖Two〗、楼梯扶手的高度有明确的规定。在室内,扶手高度自踏步前缘线量起不宜小于0.90m;而在室外,扶手高度不应小于05m。 当楼梯井宽度大于0.20m时,扶手栏杆的垂直杆件净空不应大于0.11m,以防止儿童坠落。 楼梯平台的净宽除了不应小于梯段宽度外,同时也不得小于10m。
〖Three〗、住宅楼梯扶手高度标准 室内共用楼梯扶手的高度自踏步前沿量起至扶手上皮不宜低于0.9米。若水平扶手超过0.5米长,其高度不宜低于1米。 室外共用楼梯栏杆的高度不宜低于05米。对于中高层住宅,栏杆高度不应低于10米。 当楼梯井宽度大于0.2米时,不宜选用使儿童易于攀登的花格栏杆。

楼梯栏杆扶手高度
室内共用楼梯扶手的高度自踏步前沿量起至扶手上皮不宜低于0.9米,水平扶手超过0.5米长时,其高度不宜低于1米。 室外共用楼梯栏杆的高度不宜低于05米,中高层住宅不应低于10米。 楼梯井宽度大于0.2米时,不宜选用使儿童易于攀登的花格栏杆。垂直杆件之间净空不应大于0.11米。
楼梯扶手的高度与楼梯的坡度、使用要求有关。在坡度较陡的楼梯,扶手高度可稍低;坡度平缓时,扶手高度可稍高。一般室内楼梯的扶手高度不低于900毫米,而儿童使用的楼梯一般为600毫米。
室内共用楼梯扶手高度自踏步前沿量起至扶手上皮不宜低于0.9米,水平扶手超过0.5米长时,其高度不宜低于1米。室外共用楼梯栏杆高度不宜低于05米,中高层住宅不应低于10米。楼梯井宽度大于0.2米时,不宜选用使儿童易于攀登的花格.栏杆垂直杆件之间净空不应大于0.11米。
当楼梯的长度超过5米长时,可适当将楼梯扶手的高度提升到100cm。此外,如果家中有小孩子,为安全起见,亦是应将楼梯扶手的高度,定为100cm为佳。室外楼梯扶手规范, 当临空高度在24米以下时,室外共用楼梯扶手高度不宜低于105cm ,当临空高度在24米以上时,室外的楼梯扶手高度不宜低于110cm。

楼梯扶手需要多高
〖One〗、室内楼梯扶手应至少离地面0.90米,室外楼梯则不宜低于05米。 若楼梯井宽度超过0.20米,栏杆的垂直杆件净空应小于0.11米,以防儿童跌落。 针对不同临空高度,楼梯扶手标准有所不同:24米以下楼梯,扶手高度不小于05米;24米及以上的楼梯,扶手高度不应低于10米。
〖Two〗、当楼梯的长度超过5米长时,可适当将楼梯扶手的高度提升到100cm。此外,如果家中有小孩子,为安全起见,亦是应将楼梯扶手的高度,定为100cm为佳。室外楼梯扶手规范, 当临空高度在24米以下时,室外共用楼梯扶手高度不宜低于105cm ,当临空高度在24米以上时,室外的楼梯扶手高度不宜低于110cm。
〖Three〗、楼梯扶手的一般高度为80110cm,室内楼梯的标准高度为90cm。具体来说:室内楼梯:标准高度为90cm,但可根据实际情况进行调整。例如,当楼梯长度超过5米,或者家里有小孩时,楼梯扶手的高度可以适当提高到100cm。

楼梯扶手的高度一般是多少
〖One〗、室内楼梯扶手高度规范, 室内楼梯装修的高度,标准是90cm,当然这一数据可根据实际情况改变的。当楼梯的长度超过5米长时,可适当将楼梯扶手的高度提升到100cm。此外,如果家中有小孩子,为安全起见,亦是应将楼梯扶手的高度,定为100cm为佳。
〖Two〗、对于长度超过5m的楼梯,需要适当增加扶手高度1cm左右。室外楼梯扶手高度:室外扶手高度主要根据建筑的临空高度而定,比如临空高度大于24m楼梯,扶手高度要大于1m;临空高度要大于等于24m楼梯,扶手高度要大于等于05m。楼梯扶手宽度:不管是室内还是室外的楼梯,直径在cm『6』cm之间较佳。
〖Three〗、室内共用楼梯扶手的高度自踏步前沿量起至扶手上皮不宜低于0.9米,水平扶手超过0.5米长时,其高度不宜低于1米。 室外共用楼梯栏杆的高度不宜低于05米,中高层住宅不应低于10米。 楼梯井宽度大于0.2米时,不宜选用使儿童易于攀登的花格栏杆。垂直杆件之间净空不应大于0.11米。
〖Four〗、室内楼梯装修的高度,标准应该是90cm,当然这一数据可根据实际情况改变的。毕竟每一家身高都不同,当楼梯的长度超过5米长时,可适当将楼梯扶手的高度提升到100cm。此外,如果家中有小孩子,为安全起见,亦是应将楼梯扶手的高度,定为100cm为佳。
〖Five〗、室内楼梯扶手应至少离地面0.90米,室外楼梯则不宜低于05米。 若楼梯井宽度超过0.20米,栏杆的垂直杆件净空应小于0.11米,以防儿童跌落。 针对不同临空高度,楼梯扶手标准有所不同:24米以下楼梯,扶手高度不小于05米;24米及以上的楼梯,扶手高度不应低于10米。

楼梯扶手一般多高合适啊?
〖One〗、室内楼梯扶手应至少离地面0.90米,室外楼梯则不宜低于05米。 若楼梯井宽度超过0.20米,栏杆的垂直杆件净空应小于0.11米,以防儿童跌落。 针对不同临空高度,楼梯扶手标准有所不同:24米以下楼梯,扶手高度不小于05米;24米及以上的楼梯,扶手高度不应低于10米。
〖Two〗、当楼梯的长度超过5米长时,可适当将楼梯扶手的高度提升到100cm。此外,如果家中有小孩子,为安全起见,亦是应将楼梯扶手的高度,定为100cm为佳。室外楼梯扶手规范, 当临空高度在24米以下时,室外共用楼梯扶手高度不宜低于105cm ,当临空高度在24米以上时,室外的楼梯扶手高度不宜低于110cm。
〖Three〗、楼梯扶手宽度:不管是室内还是室外的楼梯,直径在cm『6』cm之间较佳。为避免上下楼梯时产生错觉,楼梯的一级台阶与较后一级台阶的高度应该与其他级一致。如需改变,应该控制在4厘米以内,较好以不超过2厘米~3厘米为宜。
〖Four〗、楼梯扶手的高度标准尺寸一般为8001150mm。以下是关于楼梯扶手高度标准的详细说明:标准范围:根据常见规范,楼梯扶手的高度通常在800毫米至1150毫米之间。这个范围旨在确保不同身高的人群在使用楼梯时都能得到适当的支撑和保护。适用场景:这个高度标准适用于多种场景,包括住宅、公共建筑等。
好了,关于楼梯扶手需要多高和楼梯扶手规范高度多少的问题到这里结束啦,希望可以解决您的问题哈!

发表评论
评论列表