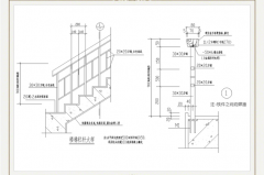
楼梯扶手需要多高,楼梯扶手规范高度多少?
这篇文章给大家聊聊关于楼梯扶手需要多高,以及楼梯扶手规范高度多少对应的知识点,希望对各位有所帮助,不要忘了收藏本站哦。楼梯扶手国家规范要求〖One〗、扶手的高度不应小于0.90米。当楼梯水平段的栏...
38生活小妙招
平台算不算一步台阶,二步台阶是吉还是凶?
大家好,今天来为大家分享平台算不算一步台阶的一些知识点,和二步台阶是吉还是凶的问题解析,大家要是都明白,那么可以忽略,如果不太清楚的话可以看看本篇文章,相信很大概率可以解决您的问题,接下来我们就一起来...
50生活小妙招
楼梯踏步灯高度多少合适,楼梯踏步灯高度多少合适安装
这篇文章给大家聊聊关于楼梯踏步灯高度多少合适,以及楼梯踏步灯高度多少合适安装对应的知识点,希望对各位有所帮助,不要忘了收藏本站哦。楼梯踏步感应灯安多高楼梯感应灯通常安装在离地面大约5米的高度。根据...
103相关资讯